.jpg)
303 W Main Street, Maroa, IL
$299,000
Active
4 Beds
2½ Baths
2,610 SqFt
0.50 Acres
3 Car Garage
About 303 W Main Street
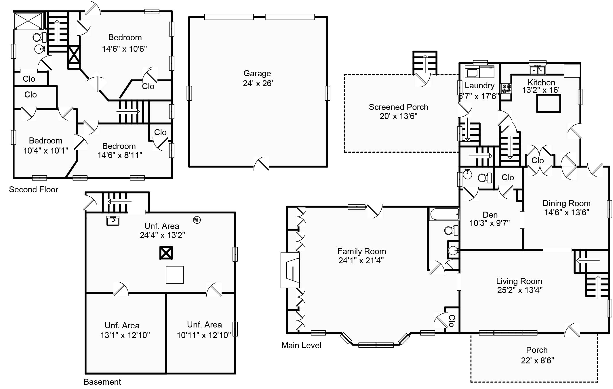
Maroa Forsyth Schools!! This One Is A WINNER !! Has Been Meticulously Maintained By Sellers for 44 Yrs~ Quick Possession Possible~This Beautiful Home Has The Charm Of Old & The Amenities Of New:- ) As You Walk In The Front Door, Notice The Original Woodwork & Nice High Ceilings~4 Bedrooms, 2.5 Baths~Main Level Has A Bedroom w/Half Bath, Currently Being Used As Office~Spacious Family Rm Addition W/Vaulted Ceiling, Bay Window, Gas Fireplace & Built-ins~There Is Also A Full Bath on Main Level Off Family Rm. Dining Room Is A Wonderful Size For Hosting Or Just For Every Night~Kitchen is Updated with White Cabinets, Island, Stainless Appliances & More~Upstairs Has 3 Spacious Bedrooms & Full Bath AND LOTS Closets (STORAGE!) To Relax, You Can Sit On The Stately Front Porch or In the Screened Back Deck Overlooking The Beautifully Landscaped Yard with Rose Garden:-) Call To Set Appointment to Make This Your New Home **Sq Footage & Rm Sizes Are Approx.Until Professionally Measured ~More Pics Soon
Facts & Features
MLS® # | 6254854 |
---|---|
Price | $299,000 |
Cost Per Square Foot | $115 |
Bedrooms | 4 |
Bathrooms | 3.00 |
Full Baths | 2 |
Half Baths | 1 |
Total Finished Square Feet | 2,610 |
Total Finished Above Grade | 2,610 |
Main | 1,812 |
Upper 1 | 798 |
Basement Total | 728 |
Acres | 0.50 |
Year Built | 1890 |
Type | Single Family |
Sub-Type | Single Family Residence |
Style | Traditional |
Status | Active |
Taxes | $5,833 |
Tax Year | 2024 |
Community Information
Address | 303 W Main Street |
---|---|
City | Maroa |
County | Macon |
State | IL |
Zip Code | 61756 |
Amenities
Parking | Detached, Garage |
---|---|
# of Garage Spaces | 3 |
Is Waterfront | No |
Has Pool | No |
Interior
Appliances | Dishwasher, Gas Water Heater, Microwave, Range, Refrigerator |
---|---|
Heating | Forced Air, Gas |
Cooling | Central Air |
Has Basement | Yes |
Basement | Crawl Space, Partial, Unfinished |
Fireplace | Yes |
# of Fireplaces | 1 |
# of Stories | 2 |
Stories | Two |
Exterior
Exterior Features | Shed |
---|---|
Roof | Shingle |
Construction | Aluminum Siding |
Foundation | Basement, Crawlspace |
School Information
District | Maroa Forsyth Dist 2 |
---|
Additional Information
Date Listed | August 31st, 2025 |
---|---|
Days on Market | 49 |
Zoning | RES |
Listing Details
Agent | Colleen Brinkoetter |
---|---|
Office | Brinkoetter REALTORS® |